Portland Community College Newberg Center
Project Overview
Portland Community College (PCC), Oregon's largest institution of higher learning, serves residents in five counties. Its mission is to “advance the region’s long-term vitality by delivering accessible, quality education to support the academic, professional, and personal development of the…communities PCC serve(s)”.
As part of a bond measure to expand classroom space, PCC purchased a 15-acre site in Newberg, a small town in the Willamette Valley, to develop a new educational facility. The 13,500-square-foot PCC Newberg Center is the initial building in the master plan. A required street extension through the site and a future bypass right-of-way led the design team to position parking south of the street, adjacent to the bypass, creating a pedestrian-only campus to the north.
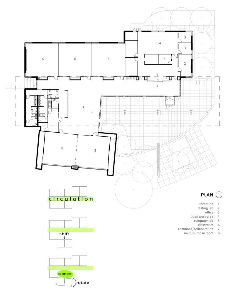
As the first building on the site, creating a welcoming sense of place was critical to the success of the campus. The large, south-facing roof reaches beyond the building’s shell to create a sheltered entry plaza – the front door to the campus. Organized around a central circulation spine, three classrooms and an administrative suite flank the north side. Multi-purpose rooms to the south shift and rotate to create a dynamic central commons for student, teacher, and community interaction.
Design & Innovation
Designed to be the first net-zero-energy higher education building in Oregon (and the second in the United States), the Newberg Center supports PCC’s sustainable mission to reduce greenhouse gas emissions 80% by 2050. As the first project of a construction bond, the building serves as a living laboratory for PCC to study energy use and strategies for its reduction. The Center’s small footprint allowed PCC to explore new systems on a small scale, allowing facilities personnel to become acquainted with different maintenance requirements before applying them on new buildings across PCC's three campuses and seven centers.
The design focused on four approaches to minimizing energy use to achieve net-zero: creating a highly efficient envelope; maximizing passive strategies; utilizing efficient systems; and engaging the user. The end result is a building form expressive of its passive design strategies – from the curtainwall pattern to the use of the ventilation stacks as an organizing element in the building. But the more important outcome is PCC’s engagement in living within the building’s energy footprint, educating themselves and students about energy-saving behavioral changes, such as wearing seasonally appropriate clothing, and the larger issue of environmental stewardship.
Regional/Community Design
In recent years, PCC has seen an upward trend of high school graduates from small communities around Newberg taking courses at PCC's Sylvania Campus. Getting to class required a 40-mile round-trip trek along traffic-congested Highway 99. Located in Newberg, on a site served by major bike routes, the Center meets the community's educational needs while reducing travel-related greenhouse gases and provides higher education for those without access to an automobile.
PCC and the design team coordinated with the City of Newberg to bring multi-modal transportation options to the Center's front door. The required roadway extension was designed to slow traffic with narrow lanes, a turnaround, and planted median strip, to make biking safe to the Center's entry. "Sharrows" painted on the roadway remind drivers they are sharing the road with bicycles. The design team also worked closely with the local bus service, the Newberg Flyer, to extend service to the campus with a stop at the Center's entry plaza.
Nestled in the Willamette Valley, the Center offers views of the nearby hillsides and greenways. The one-story building is mindful of the scale of the surrounding residential neighborhood while providing a community gathering space at the large, sheltered entry plaza.
Metrics
Land Use & Site Ecology
The guiding principles in developing the 15-acre Master Plan included creating a net-ero campus of the caliber expected of a four-year institution. The planning process included analysis of solar access, wind and ground-source-heat potential, and adjacency to bike and pedestrian paths. The Master Plan’s open-space framework connects to the surrounding community and leads to a central quad at the heart of the campus.
Informed by detailed analyses of existing soil, the design team went to great lengths to reuse all the native topsoil on site and minimize importing soil amendments. The landscape design responds to existing soil conditions by including a dense and diverse community of native plants in bioswales, providing habitat and improving water quality across the site. Large masses of shrubs and groundcover provide substantial shelter for birds and insects, while large street trees provide convenient perching for local hawk species. A selection of low evergreen shrubs located adjacent to the building’s natural ventilation louvers assist with passive cooling.
To mitigate the heat retention associated with roadways and parking lots, a variety of large shade trees, well-adapted to the region and tolerant of non-irrigated soils, flank the new roadway, its continuous median strip, and the parking lot.
Bioclimatic Design
Located roughly 60 miles inland of the Oregon coast, the city of Newberg enjoys the mild weather of the Pacific Northwest, characterized by wet winters and dry, breezy summers.
Achieved on a tight public budget, with a LEED Platinum goal, the Newberg Center showcases cost-effective, bioclimatic green strategies to create a highly sustainable educational facility accessible to the broad socio-economic groups PCC serves. Stretched out along the east-west axis, the design maximizes the north and south building exposures. The majority of classroom and office spaces are located on the north side of the building, allowing spaces to be daylit with diffuse north light. A deep overhang on the south side of the building protects openings from glare while providing outdoor spaces that can be used even during the wet winters.
Taking advantage of the Pacific Northwest's climate, the building incorporates natural ventilation and passive cooling articulated by the ventilation stacks that organize the circulation spine. Spinning ventilation turbines on each stack draw fresh air through louvers along the building's perimeter and release hot air through their tops.
Light & Air
The cost-effective daylighting design combines common skylights and acoustical ceiling tiles in a unique sloped ceiling system to wash the classrooms and open offices with even, diffused daylight - eliminating the need for electric lights during the day. Large panes of frosted glass, between the classrooms and the commons, light the classrooms from two sides while minimizing distraction. In the commons, the curtainwall pattern reflects a window-to-wall ratio that balances daylighting with overall building R-value, while north-facing clerestory slot windows evenly light the space.
In addition to natural ventilation, the building’s air quality is monitored by CO2 sensors, and the green housekeeping policy prevents the use of toxic chemicals in or around the building.
While achieving net-zero energy provides the obvious benefits of reduced greenhouse gas emissions and negligible energy expense, the most important outcome is re-connecting people with their environment. The Center's reliance on passive systems means the character of the light in the building changes throughout the day as the sun makes its path across the sky. As the seasons shift from summer to winter, so will the indoor temperature subtly shift from warmer to cooler, and the introduction of fresh air brings a sense of the outside environment and climate.
Metrics
Water Cycle
The existing natural topography was largely maintained with plant selections and locations reflecting the site’s natural hydrology. Faced with challenging existing clay soils, which are slow draining in the winter and have a low water capacity during the summer months, the design team selected drought-tolerant plants well adapted to these conditions.
Overall water use was reduced by 49.2% through the use of low-flow faucets and toilets. A weather-based irrigation system controller, drip irrigation and high-efficiency spray heads reduced irrigation water use by more than 50%. Additionally, the street median landscaping includes bulbs, shrubs, and trees requiring no long-term irrigation system, and surface water from the entry plaza and parking lot is directed into plant beds and swales to limit irrigation water use.
While the rainwater catchment system was eliminated for budgetary reasons, the project’s irrigation lines were laid with purple pipe to provide seamless integration into the City of Newberg’s current grey water re-use program (run in purple pipe throughout the city and intended for irrigation-only use) when the system is eventually extended to the Newberg Center site.
Metrics
Energy Flows & Energy Future
To drive down the building's peak energy load, passive strategies included maximizing north and south building exposures, deep overhangs, daylight, natural ventilation, concrete floors for thermal mass and a super-insulated envelope using structural insulated panels. Good passive design eliminated all mechanical cooling (excluding the server closet) and nearly all mechanical ductwork.
Supporting these passive strategies, highly efficient, separate systems provide fresh air, heat, cooling, and lighting. When outside temperatures are below 55° F, heat-recovery ventilators provide energy-efficient fresh air. The building's concrete slab heats users directly, not the air around them, by circulating 90° water through the closed-loop radiant system. In addition, ceiling fans provide a 3° drop in ambient temperature through air movement while using a fraction of the energy of air-conditioning units. To provide appropriate lighting while maximizing energy savings, lighting controls dim lights when daylight is sufficient, and vacancy sensors (which turn lights off when a room is empty but do not automatically turn lights on when someone enters) prevent lights being left on in unoccupied rooms.
The remaining energy needs are met through a 109kW roof-top photovoltaic array, including translucent panels covering the outdoor entry plaza.
Metrics
Materials & Construction
Critical to keeping energy use low was the creation of a tight, highly efficient building envelope. SIPS (structural insulated panels) used for the roofs and walls provide a high R-value and greatly reduce heat loss from thermal bridging and air infiltration. Double-dampers behind the natural ventilation louvers provide a tight seal when closed to prevent drafts. Close attention and coordination with the contractor during construction, including mock-ups and air leakage tests of the louver assembly and installation, provided confirmation of a tight, well-sealed envelope.
The project also focused on minimizing material use, such as using the structural concrete slab and concrete shear walls as final finishes and strategically placing FSC-certified white oak where it would have the greatest impact, at classroom entries and the reception desk.
Overall, the building included 29% local materials, including brick, gypsum board, and gravel used for the roadway extension, and 25% materials with recycled content; and 85% of construction waste was diverted from local landfills.
Long Life, Loose Fit
As the first building on a new campus, the Newberg Center was designed not only to provide classroom spaces and function as the campus front door but also with the understanding that, with the development of future classroom buildings on site, it would one day be transformed into the student union. To provide flexibility for this transition, the design team used a structural steel frame to allow all interior walls to be easily removed or reconfigured. The 30'x30' structural bays, with steel columns in the corners, allow multiple areas to be combined to create larger spaces for uses such as a library or cafeteria.
Design elements provide a flexible-use infrastructure: a wood-clad cable tray, located in the circulation spine and doubling as an entry soffit at classrooms, makes maintenance possible without disrupting classes and allows for easily changing out technology; large sliding glass walls between the multi-purpose room and the commons, and between the commons and the outdoor plaza, allow the building to be opened up to create a dynamic flow of spaces for larger events; and frosted glass partitions throughout the building share light between spaces and function as additional "white board" space for classrooms.
Collective Wisdom & Feedback Loops
Early design direction from PCC included creating a highly sustainable building of the caliber expected of a four-year institution. Bi-weekly meetings with faculty, administrators, and facilities ensured these goals were met and created buy-in from PCC on behavioral and institutional changes necessary to achieve net-zero energy.
The design team helped PCC examine district-wide standards for energy-saving measures. The final design includes a number of firsts for PCC: an exposed concrete slab in classrooms, a computer lab with laptops in lieu of desktops, no air conditioning, a reduction in vending machines, a non-refrigerated water fountain, and an expanded thermal comfort range. The incorporation of energy monitoring devices allows PCC to study the building's energy use and energy reduction strategies. The design team also talked with faculty and staff about their role in meeting PCC's net-zero aspirations. They, in turn, are educating students on the meaning of net-zero, the larger issue of environmental stewardship, and how students can contribute.
Regular meetings with community neighbors, local city officials, and future students built support within the community and allowed the design team to respond to community input, such as incorporating a large commons to fulfill a need for a neighborhood gathering space.
Other Information
The Newberg Center was funded as part of a $374 million bond measure. As a public institution with a deep environmental commitment, PCC wanted to show that sustainability is not only for private, big-budget institutions – that it can, and should, be done on a public budget to create sustainable spaces accessible to all socio-economic groups. The Newberg Center was seen as a pilot project for PCC to understand sustainable building strategies not previously used on their campuses and to have a tangible project that moves them towards creating a net-zero campus. As such, the net-zero aspects were a mission-based rather than economics-based decision. The simple payback for the proposed facility, with all net-zero aspects combined, is 20.2 years (incentives not included).
The total project cost (land excluded) was $7.2 million, with a building construction cost of $4.7 million. Additional funding for 75kW of the solar array came from the State of Oregon's 1.5% for solar requirement placed on the bond funding. To offset some of the energy-efficiency cost measures, the Newberg Center was also enrolled in the Energy Trust of Oregon's Path to Net Zero pilot program and received approximately $88,000 in incentives.
Design
This fast-paced project went from Master Plan through Bid Documents in seven months. From the beginning of the project, community input was a critical part of the design process. In order to develop a new Center consistent with the surrounding communities' vision, the PCC Newberg Advisory Committee, consisting of community leaders representing local city governments, high school students, and other organizations, was formed and met with regularly to provide valuable input to PCC and the design team.
Another critical part was the inclusion of a member of the Facilities Department (FMS) on the Building Committee. This member brought a crucial vantage point to the discussion of green building strategies to help make the design more maintenance-friendly. He also became an advocate for the design within FMS. Additionally, at each project milestone, the design team held a roundtable with FMS staff to review the design and gather their feedback.
An all-day net-zero design charrette with the architects, engineers, and PCC Building Committee provided an opportunity to explore, as a team, solutions for getting to net zero. During this charrette, many of the concepts for the passive design strategies were developed. Equally important in creating buy-in from the owner was a tour of multiple buildings in Oregon with sustainable design strategies similar to those being considered for the Newberg Center.
Construction
Due to PCC constraints, the project was delivered as a traditional Design-Bid-Build project. While not ideal, the selected contractor came up to speed quickly and became a valuable, collaborative partner for the team. With construction starting in October and running through one of the wettest winters in recent memory, the SIPS panels proved challenging to work with.
Operations and Maintenance
Extensive training occurred for all FMS staff, including an overview meeting with the design team to discuss the building and answer questions regarding the building systems with which the group was unfamiliar. The design team also met with faculty and staff of the facility to discuss the operation of the building and how they could contribute to a lower energy footprint. A comprehensive Users' Guide was developed to help the faculty, staff, and students understand and operate the building and to encourage ownership.
Post-Occupancy
The building is currently in an 18-month process of measurement and verification with the Energy Trust of Oregon, who will help the College and design team fine-tune the building as necessary to achieve all of the predicted energy savings. The building is sub-metered to collect energy use data on HVAC, lighting, and plug loads. The design team will review this energy data annually to inform future designs.
Additional Images
Project Team and Contact Information
| Role on Team | First Name | Last Name | Company | Location |
|---|---|---|---|---|
| Principal In Charge | Timothy | Eddy | Hennebery Eddy Architects | Portland, OR |
| Project Manager | Doug | Reimer | Hennebery Eddy Architects | Portland, OR |
| Architecture Team Member | James | Gantz | Hennebery Eddy Architects | Portland, OR |
| Architecture Team Member | Katalin | Czege | Hennebery Eddy Architects | Portland, OR |
| Civil Engineer | Mark | Reuland | KPFF Consulting Engineers | Portland, OR |
| Landscape Architect | Teresa | Chenney | Mayer Reed | Portland, OR |
| Landscape Architecture Team Member | Ryan | Carlson | Mayer Reed | Portland, OR |
| Structural Engineer | Shirley | Chalupa | DCI Engineers | Portland, OR |
| Structural Team Member | Rollston | Frangopoulos | DCI Engineers | Portland, OR |
| Mechanical Engineer | John | McMichael | Interface Engineering | Portland, OR |
| Electrical Engineer | Richard | Benney | Interface Engineering | Portland, OR |
| Electrical Team Member | Matthew | Jones | Interface Engineering | Portland, OR |
| Lighting Designer | Mark | Godfrey | Interface Engineering | Portland, OR |
| Envrionmental Design Consultant | Katrina | Shum Miller | Green Building Services | Portland, OR |
| Environmental Design Consultant | Amanda | Ryan | Green Building Services | Portland, OR |
| Planning | Catherine | Corliss | Angelo Planning Group | Portland, OR |
| Senior Project Manager | Joe | Weihmann | R&H/Colas Construction | Portland, OR |
| Superintendent | Mike | Fessler | R&H/Colas Construction | Portland, OR |
| Project Manager | Mark | Simpson | R&H/Colas Construction | Portland, OR |
| Project Engineer | Adam | Petersen | R&H/Colas Construction | Portland, OR |
| Foreman | Sam | Scott | R&H/Colas Construction | Portland, OR |
















Again, it is the first stage of an execution net zero master plan. It is the beginning of a long piece and they are already measuring, monitoring and exceeding metrics.
A real clear sense of purpose for a client type not generally known for this kind of ambition.
The deeper we dug into the water story, the stronger this project became. The city has a municipal reclaimed water district that is already in place which can give the community college confidence that it is going to be built out to them, they then made financial trade off decisions to value engineer out the water reclaim of rainwater in order to make other moves.
We also liked that the PV canopy is expressed and not hidden, sitting on top of some other structure, but instead expressed as a design feature.
Turbine ventilators really helped improve the performance of the natural ventilation system and integrated nicely into the project and was expressed as a design feature. This climate is incredibly well suited to natural ventilation but it is still by no means the norm in the industry and this project sets a good example.
They also engaged students and found a number of strategies they may not have otherwise found such as eliminating desktops for laptops, reducing vending machines, expanding the thermal comfort range. There was a cultural piece to it as well that compliments the building design.